Śr. ocena sklepu 4,91/5 wg. Opineo
Domek drewniane na działkę EKO 45 to ciepły, jasny, klimatyczny, drewniany domek letniskowy na działkę wykonany z najwższej jakości materiałów. Oferuje 17,8 m2 przestrzeni użytkowej. Nieprzedzielone pomieszczenie daje wiele możliwości zagospodarowania przestrzeni domku według własnej potrzeby.
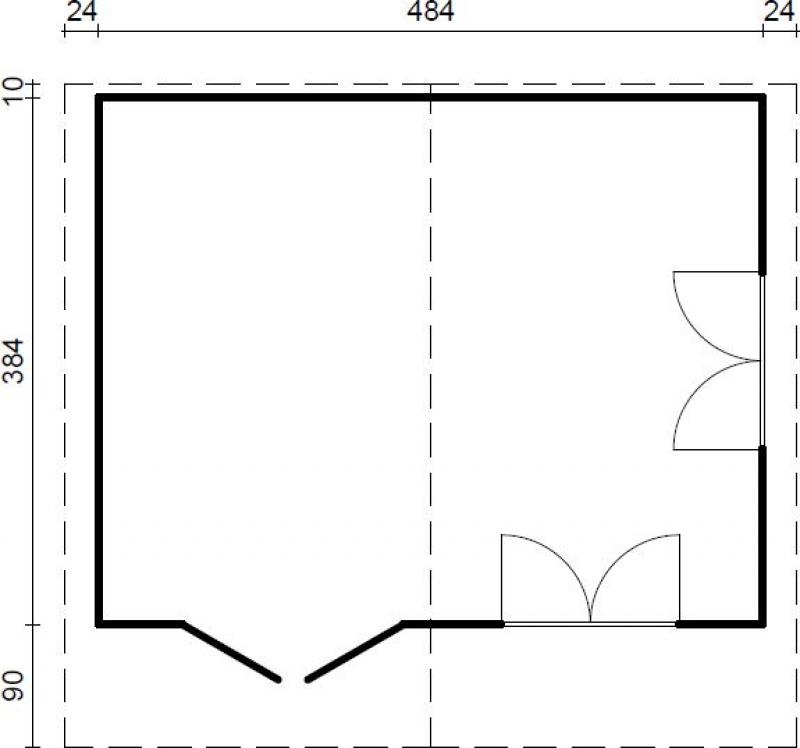
Domek EKO 45 ma jedno pomieszczenie o powierzchni 17,8 m2, w którym z powodzeniem można oganizować spotkania z przyjaciółmi, czy spędzać wolny czas na odpoczynku Domek ma 532 cm szerokości, 484 cm głębokości oraz 257 cm wysokości. Przestronne, dwuskrzydłowe, drzwi umożliwiają wnoszenie dużych sprzętów, narzędzi, czy mebli. Dodatkowo, drzwi są przeszklone, co zapewnia stały dostęp do światła dziennego. Spadzisty dach o powierzchni 18 m2 ułatwia odprowadzanie zalegających opadów atmosferycznych.

Domek w całości został wykonany z wysokiej jakości drewna świerku syberyjskiego. Drzewo dojrzewając w ciężkich warunkach atmosferycznych nabyło niezwykłej wytrzymałości i trwałości. Balik świerkowy o grubości 34 mm zapewnia niebywałą odporność konstrukcji na niekorzystne warunki atmosferyczne oraz upływ czasu. Wysunięty dach pozwola uchronić się przed deszczem, a jednosześnie zaczerpnąć świeżego powietrza. Domek jest dostarczany do Klienta w wersji "naturalnej", można go malować farbami i preparatami przeznaczonymi do malowania i ochrony drewna zgodnie z zastrzeżeniami producenta.
Uwaga! Oferta nie obejmuje podłogi, pokrycia dachu gontem ani usługi montażu.
Jeśli interesuje Państwa montaż domku - bardzo prosimy o przesłanie wiadomości na adres: sklep@meblobranie.pl - zaproponujemy dostępne możliwości oraz wycenimy usługę.
Oferowane domki drewniane poniżej 25m2 nie wymagają uzyskania pozwolenia budowlanego.
Zobacz także powiązane: pr7, domki ogrodowe opinie , domki ogrodowe drewniane
Znalazłeś ten sam produkt w innym sklepie na lepszych warunkach? Prześlij nam informację i link na adres sklep@meblobranie.pl - zweryfikujemy możliwość przedstawienia indywidualnej oferty.

Wymiary zewnętrzne:
Wymiary wewnętrzne:
Grubość balika:
Powierzchnia podłogi:
Powierzchnia dachu:
Materiał:
Na terenie Polski dostawa jest bezpłatna.
Domek dostarczany jest za pośrednictwem firmy kurierskiej w paczce. Produkt przeznaczony jest do samodzielnego montażu zgodnie z załączoną instrukcją w języku polskim.
Oferowane domki drewniane poniżej 25m2 nie wymagają uzyskania pozwolenia budowlanego (jeśli miejscowy plan zagospodarowania przestrzennego oraz warunki zabudowy dla danej działki nie mówią inaczej).
Aby zapewnić odpowiednie podłoże domku sugerujemy montaż na kostce brukowej bądź wylewce betonowej (fundament, płyta) o grubości minimum 20cm, zbrojonej. Jeśli w miejscu stawiania domu występują silne wiatry, zalecamy kotwiczenie domku.
Po montażu zaleca się impregnacje drewna środkami specjalnie do tego przeznaczonymi.
Jeśli interesuje Państwa montaż domku - bardzo prosimy o przesłanie wiadomości na adres: sklep@meblobranie.pl - zaproponujemy dostępne możliwości oraz wycenimy usługę.
Produkt dostarczany jest w 1 paczce.
Przeczytaj: szczegółowe informacje o organizacji procesu dostawy
Produkt objęty jest dwuletnią gwarancją producenta.
UWAGA: Informujemy, że dla kupujących niebędących konsumentami, sprzedawane przez nas przedmioty objęte są całkowitym wyłączeniem z tytułu rękojmi, zgodnie z przepisami zawartymi w Kodeksie Cywilnym.
| Informacje podstawowe: | |
| Materiał | drewno |
| Wymiary i waga: | |
| Szerokość [cm] | 532 |
| Głębokość [cm] | 484 |
| Wysokość [cm] | 245 |
| Powierzchnia wewnętrzna [m2] | 13,5 |
| Cechy: | |
| Dach | spadzisty |
| Drzwi | podwójne |
| Okna | Tak |
| Wejście | Z jednej strony |