Śr. ocena sklepu 4,91/5 wg. Opineo
EKO 43 to drewniany domek, który idealnie nadaje się do ogrodu lub na działkę. Jego powierzchnia użytkowa wynosi 10,3 m2. Domek z drewna został wykonany z grubego 40 milimetrowego balika ze świerku syberyjskiego. Jest niezwykle wytrzymały i praktyczny.
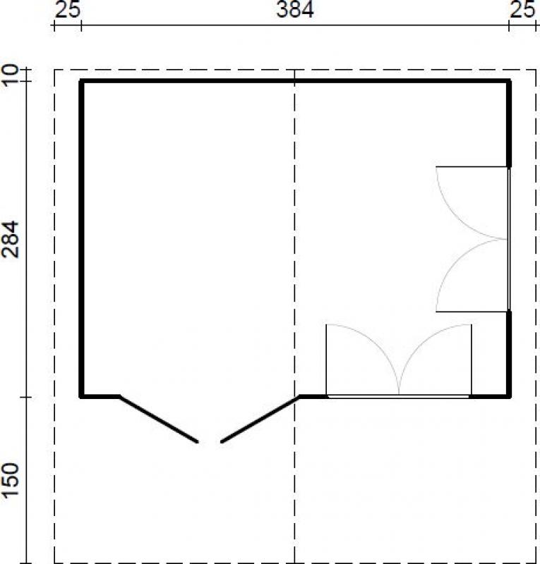
W domku letniskowym znajduje się jedno niepodzielone pomieszczenie o powierzchni 10,3 m2, co daje możliwość zagospodarowania go według własnych potrzeb. Domek ma 434 cm szerokości, 444 cm głębokości oraz 245 cm wysokości. Zdecydowaną zaletą domku są dwuskrzydłowe, przeszklone drzwi oraz dwa duże okna, które zapewniają stały dostęp światła dziennego, co sprawia, że drewniane wnętrze staje się jeszcze bardziej klimatyczne i ciepłe.

Konstrukcję domku wykonano z wysokiej jakości drewna świeku syberyjskiego, które cechuje się niebywałą wytrzymałością, trwałością i odpornością na niekorzystne warunki atmosferyczne. Obszerniejszy, wystający przed domek dach stanowi bardzo dobre rozwiązanie dla osób ceniących sobie chwile spędzone na świeżym powietrzu. Dodatkowo, spadzisty dach ułatwia odprowadzanie śniegu i wody. Domek jest dostarczany do Klienta w wersji "naturalnej". Nie jest pomalowany farbą ani środkiem impregnującym. Można zrobić to samodzielnie korzystając z farb i preparatów przeznaczonych do malowania drewna zgodnie z zastrzeżeniami producenta.
Uwaga! Oferta nie obejmuje paneli podłogowych, pokrycia dachu gontem ani usługi montażu.
Jeśli interesuje Państwa montaż domku - bardzo prosimy o przesłanie wiadomości na adres: sklep@meblobranie.pl - zaproponujemy dostępne możliwości oraz wycenimy usługę.
Oferowane domki drewniane poniżej 25m2 nie wymagają uzyskania pozwolenia budowlanego.
Zobacz także powiązane: pr7, domki ogrodowe opinie , domki ogrodowe drewniane
Znalazłeś ten sam produkt w innym sklepie na lepszych warunkach? Prześlij nam informację i link na adres sklep@meblobranie.pl - zweryfikujemy możliwość przedstawienia indywidualnej oferty.

Wymiary zewnętrzne:
Wymiary wewnętrzne:
Grubość balika:
Powierzchnia podłogi:
Powierzchnia dachu:
Materiał:
Na terenie Polski dostawa jest bezpłatna.
Domek dostarczany jest za pośrednictwem firmy kurierskiej w paczce. Produkt przeznaczony jest do samodzielnego montażu zgodnie z załączoną instrukcją w języku polskim.
Oferowane domki drewniane poniżej 25m2 nie wymagają uzyskania pozwolenia budowlanego (jeśli miejscowy plan zagospodarowania przestrzennego oraz warunki zabudowy dla danej działki nie mówią inaczej).
Aby zapewnić odpowiednie podłoże domku sugerujemy montaż na kostce brukowej bądź wylewce betonowej (fundament, płyta) o grubości minimum 20cm, zbrojonej. Jeśli w miejscu stawiania domu występują silne wiatry, zalecamy kotwiczenie domku.
Po montażu zaleca się impregnacje drewna środkami specjalnie do tego przeznaczonymi.
Jeśli interesuje Państwa montaż domku - bardzo prosimy o przesłanie wiadomości na adres: sklep@meblobranie.pl - zaproponujemy dostępne możliwości oraz wycenimy usługę.
Produkt dostarczany jest w 1 paczce.
Przeczytaj: szczegółowe informacje o organizacji procesu dostawy
Produkt objęty jest dwuletnią gwarancją producenta.
UWAGA: Informujemy, że dla kupujących niebędących konsumentami, sprzedawane przez nas przedmioty objęte są całkowitym wyłączeniem z tytułu rękojmi, zgodnie z przepisami zawartymi w Kodeksie Cywilnym.
| Informacje podstawowe: | |
| Materiał | drewno |
| Wymiary i waga: | |
| Szerokość [cm] | 434 |
| Głębokość [cm] | 444 |
| Wysokość [cm] | 245 |
| Powierzchnia wewnętrzna [m2] | 10 |
| Cechy: | |
| Dach | spadzisty |
| Drzwi | podwójne |
| Okna | Tak |
| Wejście | Z jednej strony |
| Inne: | |
| Proporcje [długość/szerokość] | 3x4 |