Śr. ocena sklepu 4,91/5 wg. Opineo
Domek drewniany letniskowy RUDZIK E oferuje aż 24 m2 powierzchni użytkowej do dowolnej aranżacji. Domek do ogrodu idealnie sprawdzi się podczas letniego urlopu. Wnętrze podzielone na trzy pomieszczenia zagwarantuje komfortowy wypoczynek z rodziną, czy przyjaciółmi. Domek wykonany z najwyższej jakości materiałów gwarantuje wieloletnie i bezpieczne użytkowanie.

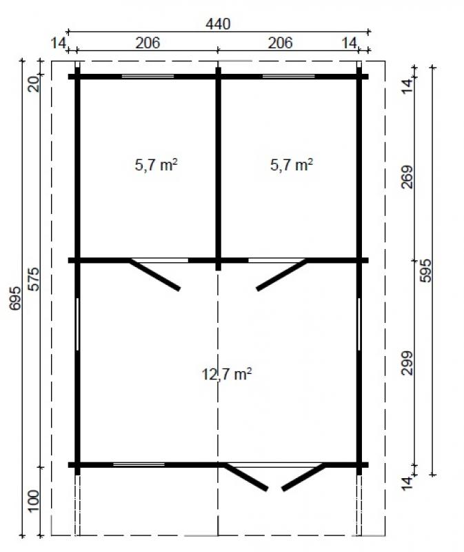
Domek razem z zadaszeniem ma 440 cm szerokości, 695 cm głębokości oraz 279 cm wysokości. Wnętrze domku zostało podzielone na trzy pomieszczenia. Największe pomieszczenie o powierzchni 12,7 m2 może pełnić funkcję pokoju wypoczynkowo-sypialnianego. Z niego można przejść do dwóch pozostałych pokojów o powierzchniach 5,7 m2, w których można urządzić np. łazienkę i kuchnię z jadalnią lub dodatkową sypialnię.
Domek RUDZIK E został wyposażony w dwie pary jednoskrzydłowych drzwi wewnętrzych, w dwuskrzydłowe, przeszklone drzwi zewnętrze oraz w pięć okien, które rozświetlają wnętrze, sprawiając, że staje się jeszcze bardziej klimatyczne.

Domek wykonany jest z wysokiej jakości drewna świerku syberyjskiego. Gatunek ten jest charakterystyczny dla obszarów klimatu surowego. Wzrastając w warunkach niskiej temperatury oraz wilgotności nabiera niebywałej odporności na szereg niekorzystnych czynników. Domek jest dostarczany do Klienta w wersji "naturalnej", można go malować farbami i preparatami przeznaczonymi do malowania i ochrony drewna zgodnie z zastrzeżeniami producenta.

Uwaga! Oferta nie obejmuje podłogi, pokrycia dachu gontem ani usługi montażu.
Jeśli interesuje Państwa montaż domku - bardzo prosimy o przesłanie wiadomości na adres: sklep@meblobranie.pl - zaproponujemy dostępne możliwości oraz wycenimy usługę.
Oferowane domki drewniane poniżej 25m2 nie wymagają uzyskania pozwolenia budowlanego.
Zobacz także powiązane: pr7, domki ogrodowe opinie , domki ogrodowe drewniane
Znalazłeś ten sam produkt w innym sklepie na lepszych warunkach? Prześlij nam informację i link na adres sklep@meblobranie.pl - zweryfikujemy możliwość przedstawienia indywidualnej oferty.

Wymiary zewnętrzne:
Wymiary wewnętrzne:
Grubość balika:
Powierzchnia podłogi:
Powierzchnia dachu:
Nachylenie dachu:
Materiał:
Na terenie Polski dostawa jest bezpłatna.
Domek dostarczany jest za pośrednictwem firmy kurierskiej w paczce. Produkt przeznaczony jest do samodzielnego montażu zgodnie z załączoną instrukcją w języku polskim.
Oferowane domki drewniane poniżej 25m2 nie wymagają uzyskania pozwolenia budowlanego (jeśli miejscowy plan zagospodarowania przestrzennego oraz warunki zabudowy dla danej działki nie mówią inaczej).
Aby zapewnić odpowiednie podłoże domku sugerujemy montaż na kostce brukowej bądź wylewce betonowej (fundament, płyta) o grubości minimum 20cm, zbrojonej. Jeśli w miejscu stawiania domu występują silne wiatry, zalecamy kotwiczenie domku.
Po montażu zaleca się impregnacje drewna środkami specjalnie do tego przeznaczonymi.
Jeśli interesuje Państwa montaż domku - bardzo prosimy o przesłanie wiadomości na adres: sklep@meblobranie.pl - zaproponujemy dostępne możliwości oraz wycenimy usługę.
Produkt dostarczany jest w 1 paczce.
Przeczytaj: szczegółowe informacje o organizacji procesu dostawy
Produkt objęty jest dwuletnią gwarancją producenta.
UWAGA: Informujemy, że dla kupujących niebędących konsumentami, sprzedawane przez nas przedmioty objęte są całkowitym wyłączeniem z tytułu rękojmi, zgodnie z przepisami zawartymi w Kodeksie Cywilnym.
| Informacje podstawowe: | |
| Materiał | drewno |
| Wymiary i waga: | |
| Szerokość [cm] | 440 |
| Głębokość [cm] | 695 |
| Wysokość [cm] | 279 |
| Powierzchnia wewnętrzna [m2] | 24 |
| Cechy: | |
| Dach | spadzisty |
| Drzwi | podwójne |
| Okna | Tak |
| Wejście | Z jednej strony |