Śr. ocena sklepu 4,91/5 wg. Opineo
Domek drewniany RUDZIK A idealny do letniego wypoczynku, czy przechowywania narzędzi ogrodowych. Domek letniskowy zapewnia prawie 18 m2 powierzchni użytkowej do dowolnej aranżacji. Wykonany z wysoce odpornego na szereg czynników drewna świerku syberyjskiego.
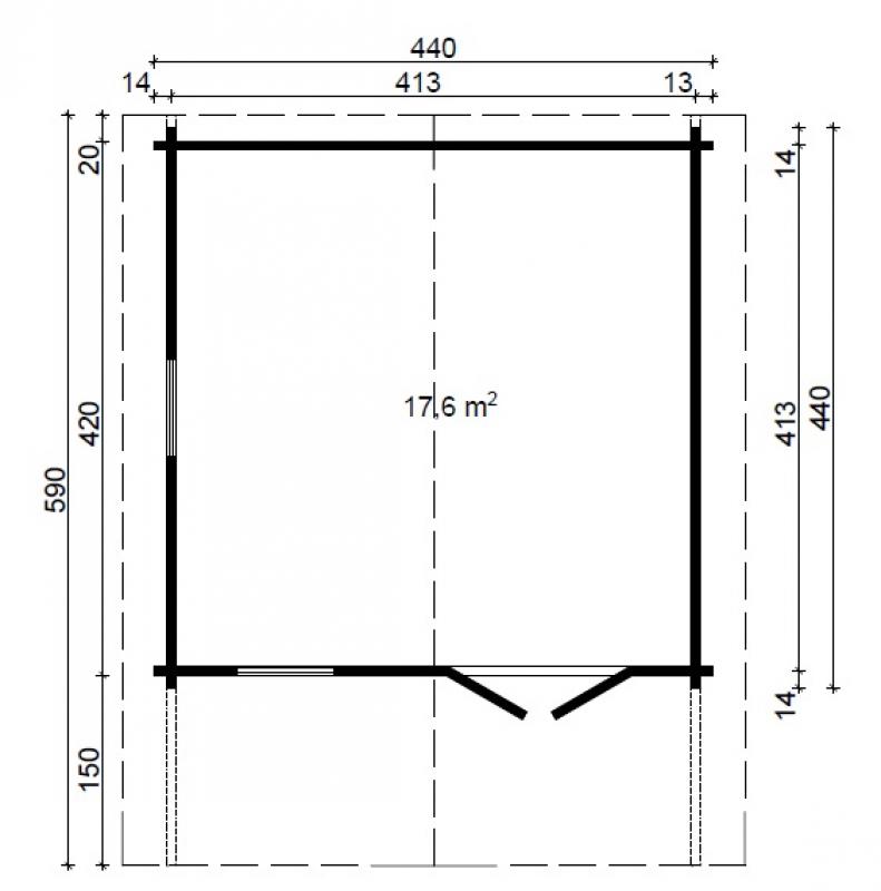
Domek razem z zadaszeniem ma 440 cm szerokości, 590 cm głębokości oraz 279 cm wysokości. Wewnątrz domku znajduje się jedno pomieszczenie o powierzchni 17,6 m2, w którym można urządzić salon wypoczynkowy, sypialnię dla gości, czy miejsce spotkań wśród rodziny i przyjaciół.

Domek wyposażono w dwuskrzydłowe, przeszklone drzwi, przez które z powodzeniem wniesiemy duże sprzęty, narzędzia ogrodowe, czy meble. Domek rozświetlają dwa okna, które gwarantują stały dostęp do naturalnego światła, co sprawia, że wnętrze domku staje się jeszcze bardziej klimatyczne.
Zdecydowaną zaletą domku jest wysunięty na 150 cm dach, który zapewnia dodatkową przestrzeń na wypoczynek na świeżym powietrzu bez obawy o pogodę. Zabezpieczy meble wypoczynkowe przed deszczem i blaknięciem. Dodatkowo, spadzisty dach o nachyleniu 17° ułatwia odprowadzanie śniegu i wody.

Domek został wykonany z wysokiej jakości drewna świerku syberyjskiego. Drzewo dojrzewając w surowych warunkach atmosferycznych stało się niebywale trwałe i wytrzymałe. Wszystkie elementy konstrukcyjne są odporne na szereg niekorzystnych czynników zewnętrznych. Domek dostarczany jest do klienta w wersji "naturalnej". Drewno nie zostało pomalowane farbą, ani zabezpieczone impregnatem. Domek można malować farbami i preparatami przeznaczonymi do malowania drewna zgodnie z zastrzeżeniami producenta.

Uwaga! Oferta nie dotyczy paneli podłogowych, pokrycia dachu gontem ani usługi montażu.
Jeśli interesuje Państwa montaż domku - bardzo prosimy o przesłanie wiadomości na adres: sklep@meblobranie.pl - zaproponujemy dostępne możliwości oraz wycenimy usługę.
Oferowane domki drewniane poniżej 25m2 nie wymagają uzyskania pozwolenia budowlanego.
Zobacz także powiązane: pr7, domki ogrodowe opinie , domki ogrodowe drewniane
Znalazłeś ten sam produkt w innym sklepie na lepszych warunkach? Prześlij nam informację i link na adres sklep@meblobranie.pl - zweryfikujemy możliwość przedstawienia indywidualnej oferty.

Wymiary zewnętrzne:
Wymiary wewnętrzne:
Grubość balika:
Powierzchnia podłogi:
Powierzchnia dachu:
Nachylenie dachu:
Materiał:
Na terenie Polski dostawa jest bezpłatna.
Domek dostarczany jest za pośrednictwem firmy kurierskiej w paczce. Produkt przeznaczony jest do samodzielnego montażu zgodnie z załączoną instrukcją w języku polskim.
Oferowane domki drewniane poniżej 25m2 nie wymagają uzyskania pozwolenia budowlanego (jeśli miejscowy plan zagospodarowania przestrzennego oraz warunki zabudowy dla danej działki nie mówią inaczej).
Aby zapewnić odpowiednie podłoże domku sugerujemy montaż na kostce brukowej bądź wylewce betonowej (fundament, płyta) o grubości minimum 20cm, zbrojonej. Jeśli w miejscu stawiania domu występują silne wiatry, zalecamy kotwiczenie domku.
Po montażu zaleca się impregnacje drewna środkami specjalnie do tego przeznaczonymi.
Jeśli interesuje Państwa montaż domku - bardzo prosimy o przesłanie wiadomości na adres: sklep@meblobranie.pl - zaproponujemy dostępne możliwości oraz wycenimy usługę.
Produkt dostarczany jest w 1 paczce.
Przeczytaj: szczegółowe informacje o organizacji procesu dostawy
Produkt objęty jest dwuletnią gwarancją producenta.
UWAGA: Informujemy, że dla kupujących niebędących konsumentami, sprzedawane przez nas przedmioty objęte są całkowitym wyłączeniem z tytułu rękojmi, zgodnie z przepisami zawartymi w Kodeksie Cywilnym.
| Informacje podstawowe: | |
| Materiał | drewno |
| Wymiary i waga: | |
| Szerokość [cm] | 440 |
| Głębokość [cm] | 590 |
| Wysokość [cm] | 279 |
| Powierzchnia wewnętrzna [m2] | 17,5 |
| Cechy: | |
| Dach | spadzisty |
| Drzwi | podwójne |
| Okna | Tak |
| Wejście | Z jednej strony |