Śr. ocena sklepu 4,91/5 wg. Opineo
Domek z drewna, w którym można bezpiecznie przechowywać narzędzia, wypoczywać oraz który przyozdobi każdy ogród. Jest to połączenie pomieszczenia zamkniętego, które może służyć jako domek narzędziowy czy niewielki domek letniskowy, oraz wiatki pod którą można nie tylko magazynować sprzęt, czy drewno, ale nawet organizować spotkania w gronie najbliższych.
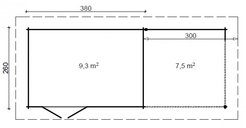
Domek składa się z zamkniętego pomieszczenia o powierzchni 9,3 m2 oraz zadaszenia, które zapewnia dodatkowe 7,5 m2 powierzchni. Zadaszenie zabezpieczy meble przed deszczem i blaknięciem, spowodowanym zbyt długim wystaweniem na działanie promieni słonecznych. W celu zwiększenia komfortu użytkowania, domek wyposażono w przestronne, dwuskrzydłowe drzwi oraz wąskie okno. Dzięki temu do wnętrza można wnosić także obszerniejsze przedmioty.

Ściany są wykonane z 28 milimetrowych litych bali świerkowych montowanych techniką "pióro-wpust", dzięki czemu uzyskano wysoką stabilność i wytrzymałość konstrukcji. Cały domek został wykonany z wysokiej jakości drewna świerkowego, które jest niezwykle trwałe i odporne na niekorzystne warunki atmosferyczne. Domek posiada również praktyczny, dwuspadowy dach, dzięki któremu opady atmosferyczne nie zalegają na jego powierzchni. Drewniany domek sprzedawany jest w wersji "naturalnej" malować można go farbami przeznaczonymi do drewna zgodnie z zastrzeżeniami producenta.
Uwaga! Oferta nie obejmuje pokrycia dachu gontem ani usługi montażu.
Jeśli interesuje Państwa montaż domku - bardzo prosimy o przesłanie wiadomości na adres: sklep@meblobranie.pl - zaproponujemy dostępne możliwości oraz wycenimy usługę.
Oferowane domki drewniane poniżej 25m2 nie wymagają uzyskania pozwolenia budowlanego.
Zobacz także powiązane: pr7, domki ogrodowe opinie , domki ogrodowe drewniane
Znalazłeś ten sam produkt w innym sklepie na lepszych warunkach? Prześlij nam informację i link na adres sklep@meblobranie.pl - zweryfikujemy możliwość przedstawienia indywidualnej oferty.

Wymiary zewnętrzne:
Grubość balika:
Powierzchnia podłogi:
Powierzchnia dachu:
Materiał:
Na terenie Polski dostawa jest bezpłatna.
Domek dostarczany jest za pośrednictwem firmy kurierskiej w paczce. Produkt przeznaczony jest do samodzielnego montażu zgodnie z załączoną instrukcją w języku polskim.
Oferowane domki drewniane poniżej 25m2 nie wymagają uzyskania pozwolenia budowlanego (jeśli miejscowy plan zagospodarowania przestrzennego oraz warunki zabudowy dla danej działki nie mówią inaczej).
Aby zapewnić odpowiednie podłoże domku sugerujemy montaż na kostce brukowej bądź wylewce betonowej (fundament, płyta) o grubości minimum 20cm, zbrojonej. Jeśli w miejscu stawiania domu występują silne wiatry, zalecamy kotwiczenie domku.
Po montażu zaleca się impregnacje drewna środkami specjalnie do tego przeznaczonymi.
Jeśli interesuje Państwa montaż domku - bardzo prosimy o przesłanie wiadomości na adres: sklep@meblobranie.pl - zaproponujemy dostępne możliwości oraz wycenimy usługę.
Produkt dostarczany jest w 1 paczce.
Przeczytaj: szczegółowe informacje o organizacji procesu dostawy
Produkt objęty jest dwuletnią gwarancją producenta.
UWAGA: Informujemy, że dla kupujących niebędących konsumentami, sprzedawane przez nas przedmioty objęte są całkowitym wyłączeniem z tytułu rękojmi, zgodnie z przepisami zawartymi w Kodeksie Cywilnym.
| Informacje podstawowe: | |
| Materiał | drewno |
| Wymiary i waga: | |
| Szerokość [cm] | 680 |
| Głębokość [cm] | 260 |
| Powierzchnia wewnętrzna [m2] | 17 |
| Cechy: | |
| Dach | spadzisty |
| Drzwi | podwójne |
| Okna | Tak |
| Wejście | Z jednej strony |