Śr. ocena sklepu 4,91/5 wg. Opineo
Urokliwy domek z drewna RYBACZEK to doskonałe rozwiązanie na działkę poza miastem. Drewniany ddomek oferuje ponad 21 m2 powierzchni użytkowej podzielonej na trzy pomieszczenia. Uprzyjemni letni wypoczynek, a wykonanie z materiałów najwyższej jakości zagwarantuje wieloletnie i komfortowe użytkowanie.

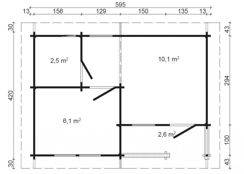
Domek wraz z zadaszeniem ma 595 cm szerokości, 480 cm głębokości, a jego wysokość waha się od 240 cm do 300 cm. Wnętrze domku zostało podzielone na trzy pomieszczenia. Największe pomieszczenie o powierzchni 10,1 m2 pełni funkcję pokoju przejsciowego. Można w nim urządzić np. salon. Dwa mniejsze pomieszczenia o powierzchniach 2,5 m2 oraz 6,1 m2 mogą służyć jako łazienka, sypialnia, czy schowek.
Liczne okna rozświetlają wnętrze domku sprawiając, że staje się jeszcze bardziej klimatyczne. Domek został wyposażony w dwie pary jednoskrzydłowych drzwi wewnętrznych oraz w jednoskrzydłowe, zabudowane drzwi wejściowe. Dodatkowym atutem domku jest mały, zadaszony taras o powierzchni 2,6 m2, znajdujący się przed wejściem.

Domek wykonany jest z wysokiej jakości drewna świerku syberyjskiego. Gatunek ten jest charakterystyczny dla obszarów klimatu surowego. Wzrastając w warunkach niskiej temperatury oraz wilgotności nabiera niebywałej odporności na szereg niekorzystnych czynników. Domek jest dostarczany do Klienta w wersji "naturalnej", można go malować farbami i preparatami przeznaczonymi do malowania i ochrony drewna zgodnie z zastrzeżeniami producenta.
Uwaga! Oferta nie obejmuje podłogi, pokrycia dachu gontem ani usługi montażu.
Jeśli interesuje Państwa montaż domku - bardzo prosimy o przesłanie wiadomości na adres: sklep@meblobranie.pl - zaproponujemy dostępne możliwości oraz wycenimy usługę.
Oferowane domki drewniane poniżej 25m2 nie wymagają uzyskania pozwolenia budowlanego.
Zobacz także powiązane: pr7, domki ogrodowe opinie , domki ogrodowe drewniane
Znalazłeś ten sam produkt w innym sklepie na lepszych warunkach? Prześlij nam informację i link na adres sklep@meblobranie.pl - zweryfikujemy możliwość przedstawienia indywidualnej oferty.

Wymiary zewnętrzne:
Wymiary wewnętrzne:
Grubość balika:
Powierzchnia podłogi:
Powierzchnia dachu:
Nachylenie dachu:
Materiał:
Na terenie Polski dostawa jest bezpłatna.
Domek dostarczany jest za pośrednictwem firmy kurierskiej w paczce. Produkt przeznaczony jest do samodzielnego montażu zgodnie z załączoną instrukcją w języku polskim.
Oferowane domki drewniane poniżej 25m2 nie wymagają uzyskania pozwolenia budowlanego (jeśli miejscowy plan zagospodarowania przestrzennego oraz warunki zabudowy dla danej działki nie mówią inaczej).
Aby zapewnić odpowiednie podłoże domku sugerujemy montaż na kostce brukowej bądź wylewce betonowej (fundament, płyta) o grubości minimum 20cm, zbrojonej. Jeśli w miejscu stawiania domu występują silne wiatry, zalecamy kotwiczenie domku.
Po montażu zaleca się impregnacje drewna środkami specjalnie do tego przeznaczonymi.
Jeśli interesuje Państwa montaż domku - bardzo prosimy o przesłanie wiadomości na adres: sklep@meblobranie.pl - zaproponujemy dostępne możliwości oraz wycenimy usługę.
Produkt dostarczany jest w 1 paczce.
Przeczytaj: szczegółowe informacje o organizacji procesu dostawy
Produkt objęty jest dwuletnią gwarancją producenta.
UWAGA: Informujemy, że dla kupujących niebędących konsumentami, sprzedawane przez nas przedmioty objęte są całkowitym wyłączeniem z tytułu rękojmi, zgodnie z przepisami zawartymi w Kodeksie Cywilnym.
| Informacje podstawowe: | |
| Materiał | drewno |
| Wymiary i waga: | |
| Szerokość [cm] | 595 |
| Głębokość [cm] | 480 |
| Wysokość [cm] | 300 |
| Powierzchnia wewnętrzna [m2] | 21,5 |
| Cechy: | |
| Dach | spadzisty |
| Drzwi | pojedyncze |
| Okna | Tak |
| Wejście | Z jednej strony |