Śr. ocena sklepu 4,91/5 wg. Opineo
Drewniany domek na działkę rekreacyjną EKO 127 to domek o prostej, klasycznej formie i jasnym, klimatycznym wnętrzu. Ze względu na swe niewielkie rozmiary zmieści się nawet na małej działce. Domek z drewna jest nie tylko bardzo estetyczny ale również niezwykle funkcjonalny. W lato może pełnić funkcję domku letniskowego, natomiast w zimę domku narzędziowego.

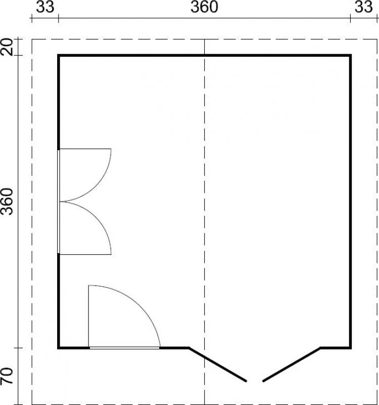
Domek zajmuje obszar o powierzchni 12,1 m2, ma 425 cm szerokości, 450 cm głębokości oraz 263 cm wysokości. Wewnątrz domku znajduje się jedno, niepodzielone pomieszczenie, do którego można wejść przez dwuskrzydłowe, przeszklone drzwi. Dwa duże okna przepuszczają optymalną ilość światła dziennego, co dodatkowo zwiększa klimatyczność drewnianego wnętrza.

Domek został wykonany z drewna świerku syberyjskiego, które charakteryzuje się niebywałą odpornością i trwałością. Wszystkie elementy konstrukcyjne są odporne na niekorzystne warunki atmosferyczne. Balik świerkowy o grubości 58mm nie tylko zapewnia niebywałą odporność na czynniki zewnętrzne, ale pozwala utrzymać doskonałe parametry cieplne. Dodatkowo, spadzisty dach ułatwia odprowadzanie wody i śniegu, dzięki czemu nie zalegają na jego powierzchni. Domek dostarczany jest do klienta w wersji "naturalnej", można go malować wszelkimi preparatami i farbami przeznaczonymi do malowania drewna zgodnie z zastrzeżeniami producenta.
Uwaga! Oferta nie obejmuje paneli podłogowych, pokrycia dachu gontem ani usługi montażu.
Jeśli interesuje Państwa montaż domku - bardzo prosimy o przesłanie wiadomości na adres: sklep@meblobranie.pl - zaproponujemy dostępne możliwości oraz wycenimy usługę.
Oferowane domki drewniane poniżej 25m2 nie wymagają uzyskania pozwolenia budowlanego.
Zobacz także powiązane: pr7, domki ogrodowe opinie , domki ogrodowe drewniane
Znalazłeś ten sam produkt w innym sklepie na lepszych warunkach? Prześlij nam informację i link na adres sklep@meblobranie.pl - zweryfikujemy możliwość przedstawienia indywidualnej oferty.

Wymiary zewnętrzne:
Wymiary wewnętrzne:
Grubość balika:
Powierzchnia podłogi:
Powierzchnia dachu:
Materiał:
Na terenie Polski dostawa jest bezpłatna.
Domek dostarczany jest za pośrednictwem firmy kurierskiej w paczce. Produkt przeznaczony jest do samodzielnego montażu zgodnie z załączoną instrukcją w języku polskim.
Oferowane domki drewniane poniżej 25m2 nie wymagają uzyskania pozwolenia budowlanego (jeśli miejscowy plan zagospodarowania przestrzennego oraz warunki zabudowy dla danej działki nie mówią inaczej).
Aby zapewnić odpowiednie podłoże domku sugerujemy montaż na kostce brukowej bądź wylewce betonowej (fundament, płyta) o grubości minimum 20cm, zbrojonej. Jeśli w miejscu stawiania domu występują silne wiatry, zalecamy kotwiczenie domku.
Po montażu zaleca się impregnacje drewna środkami specjalnie do tego przeznaczonymi.
Jeśli interesuje Państwa montaż domku - bardzo prosimy o przesłanie wiadomości na adres: sklep@meblobranie.pl - zaproponujemy dostępne możliwości oraz wycenimy usługę.
Produkt dostarczany jest w 1 paczce.
Przeczytaj: szczegółowe informacje o organizacji procesu dostawy
Produkt objęty jest dwuletnią gwarancją producenta.
UWAGA: Informujemy, że dla kupujących niebędących konsumentami, sprzedawane przez nas przedmioty objęte są całkowitym wyłączeniem z tytułu rękojmi, zgodnie z przepisami zawartymi w Kodeksie Cywilnym.
| Informacje podstawowe: | |
| Materiał | drewno |
| Wymiary i waga: | |
| Szerokość [cm] | 426 |
| Głębokość [cm] | 450 |
| Wysokość [cm] | 263 |
| Powierzchnia wewnętrzna [m2] | 12 |
| Cechy: | |
| Dach | spadzisty |
| Drzwi | podwójne |
| Okna | Tak |
| Wejście | Z jednej strony |