Śr. ocena sklepu 4,91/5 wg. Opineo
Nowoczesny styl projektu domku letniskowego w połączeniu z prostą bryłą tworzą idealne rozwiązanie zarówno na działkę poza miastem, jak również do przydomowego ogrodu. Domek z drewna oferujący 15,2 m2 powierzchni użytkowej został wykonany z najwyższej jakości drewna świerku syberyjskiego. Wiata pozwala na wydzielenie części rekreacyjnej oraz magazynowej.
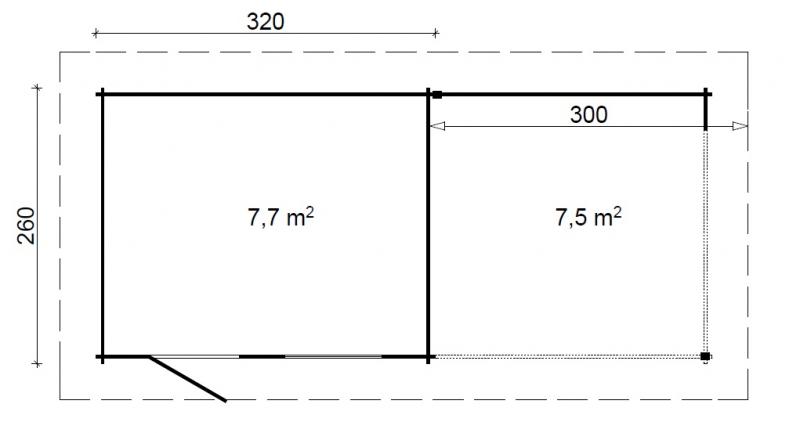
Domek składa się z zamkniętego pomieszczenia o powierzchni 7,7 m2 oraz z wiaty o powierzchni 7,5 m2. W domku mogą Państwo urządzić salon z aneksem kuchennym, sypialnie, czy schowek na narzędzia. Pod wiatą będą mogli Państwo wypoczywać na świeżym powietrzu nie martwiąc się o pogodę. Zadaszenie zabezpieczy meble wypoczynkowe przed deszczem i blaknięciem. Wiata może również służyć jako drewutnia. Na frontowej ścianie domku znajdują się pojedyncze, przeszklone drzwi oraz wąskie okno, co gwarantuje stały dostęp światła dziennego, które rozświetla wnętrze domku.

Domek został wykonany z 28 milimetrowego balika z drewna świerku syberyjskiego. Drzewo dojrzewające w surowych warunkach atmosferycznych nabyło niezwykłej odporności, trwałości i wytrzymałości. Wszystkie elementy konstrukcyjne są odporne na niekorzystne czynniki atmosferyczne. Domek jest dostarczany do Klienta w wersji "naturalnej", można go malować farbami i preparatami przeznaczonymi do malowania i ochrony drewna zgodnie z zastrzeżeniami producenta.
Uwaga! Oferta nie obejmuje pokrycia dachu gontem ani usługi montażu.
Jeśli interesuje Państwa montaż domku - bardzo prosimy o przesłanie wiadomości na adres: sklep@meblobranie.pl - zaproponujemy dostępne możliwości oraz wycenimy usługę.
Oferowane domki drewniane poniżej 25m2 nie wymagają uzyskania pozwolenia budowlanego.
Zobacz także powiązane: pr7, domki ogrodowe opinie , domki ogrodowe drewniane
Znalazłeś ten sam produkt w innym sklepie na lepszych warunkach? Prześlij nam informację i link na adres sklep@meblobranie.pl - zweryfikujemy możliwość przedstawienia indywidualnej oferty.

Wymiary zewnętrzne:
Grubość balika:
Powierzchnia podłogi:
Powierzchnia dachu:
Nachylenie dachu:
Materiał:
Na terenie Polski dostawa jest bezpłatna.
Domek dostarczany jest za pośrednictwem firmy kurierskiej w paczce. Produkt przeznaczony jest do samodzielnego montażu zgodnie z załączoną instrukcją w języku polskim.
Oferowane domki drewniane poniżej 25m2 nie wymagają uzyskania pozwolenia budowlanego (jeśli miejscowy plan zagospodarowania przestrzennego oraz warunki zabudowy dla danej działki nie mówią inaczej).
Aby zapewnić odpowiednie podłoże domku sugerujemy montaż na kostce brukowej bądź wylewce betonowej (fundament, płyta) o grubości minimum 20cm, zbrojonej. Jeśli w miejscu stawiania domu występują silne wiatry, zalecamy kotwiczenie domku.
Po montażu zaleca się impregnacje drewna środkami specjalnie do tego przeznaczonymi.
Jeśli interesuje Państwa montaż domku - bardzo prosimy o przesłanie wiadomości na adres: sklep@meblobranie.pl - zaproponujemy dostępne możliwości oraz wycenimy usługę.
Produkt dostarczany jest w 1 paczce.
Przeczytaj: szczegółowe informacje o organizacji procesu dostawy
Produkt objęty jest dwuletnią gwarancją producenta.
UWAGA: Informujemy, że dla kupujących niebędących konsumentami, sprzedawane przez nas przedmioty objęte są całkowitym wyłączeniem z tytułu rękojmi, zgodnie z przepisami zawartymi w Kodeksie Cywilnym.
| Informacje podstawowe: | |
| Materiał | drewno |
| Wymiary i waga: | |
| Szerokość [cm] | 620 |
| Głębokość [cm] | 260 |
| Powierzchnia wewnętrzna [m2] | 15 |
| Cechy: | |
| Dach | prosty |
| Drzwi | pojedyncze |
| Okna | Tak |
| Wejście | Z jednej strony |